In der »schönsten Parkanlage im Leipziger Südraum« - so die Angabe des Eigentümers - ensteht eine angemessene Gartenbauhalle. Wir knüpfen an die historische Orangerie an und berücksichtigen zugleich das Hochwasserrisiko.
Der Ort: ein Privatpark
Wer von Leipzig aus mit dem Rad zum Cospudener See fährt, kennt den Park. Fast unweigerlich führt die Route südlich durch den mystischen Elster-Pleiße-Auwald. Nördlich von Markkleeberg unterquert man die Gleise der Waldbahn und erreicht schließlich die von Silberlinden gesäumte Allee des Equipagenwegs. Kleingärten und kubische Stadtvillen liegen sich hier direkt gegenüber.
Das neobarocke Adlertor markiert den Übergang in den Kees’schen Park – ein denkmalgeschütztes Gartendenkmal, das heute als privater, jedoch öffentlich zugänglicher Park genutzt wird.
Die Aufgabe
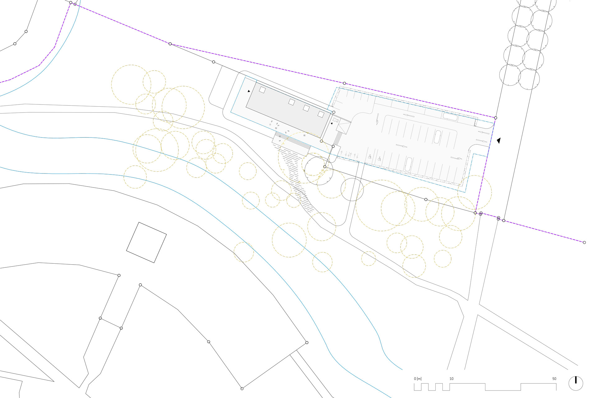
Die bisher provisorischen Bauten für die Pflege und Verwaltung des Parks waren unzureichend. Mit der baulichen Erweiterung des Kinderhospizes »Bärenherz« wuchs zudem der Bedarf an Stellplätzen und funktionalen Räumen. Der Bebauungsplan »Kees'scher Park Markkleeberg« sieht speziell zur Pflege und Entwicklung des Parks ein eigenes (im Lageplan blau umrissenes) Baufeld vor, das nord-westlich des Adlertors liegt.
Hier stand einst die historische Orangerie, von der sich im verwilderten Waldboden nur noch vereinzelte Fragmente des Maßwerks finden lassen. Da zudem Zeichnungen und Fotos des im Stil der Tudor-Gotik errichteten Gebäudes äußerst rar sind, kam eine Rekonstruktion nicht infrage.
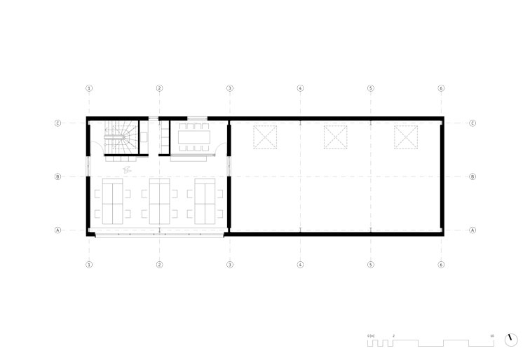
Der Bauherr wünscht eine kostengünstige Halle, die das zulässige Bauvolumen optimal ausnutzt und gleichzeitig als zeitgenössische Orangerie dient. Das Raumprogramm vereint eine Werkstatt, sanitäre Anlagen, Büros sowie einen großzügigen Mehrzweckraum, der im Jahresverlauf flexibel genutzt werden kann – vom Unterstellen landwirtschaftlicher Geräte bis zum frostfreien Winterquartier für empfindliche Pflanzen. Auch Veranstaltungen sind denkbar.
Das Konzept
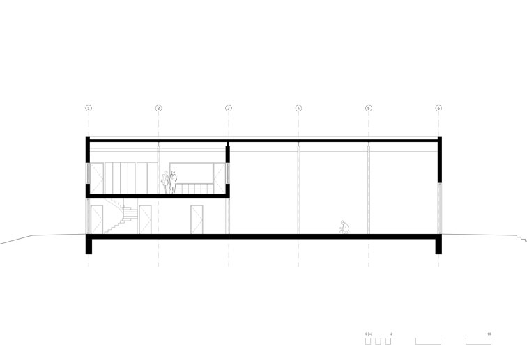
Das architektonische Konzept interpretiert die Typologie der Orangerie neu. Es handelt sich um einen kubischen Baukörper, der von großformatigen Öffnungen gegliedert wird. Die Fenster der Pflanzenhalle orientieren sich nach Süden; Klappläden aus Holz und Stahl zitieren historische Vorbilder wie die beeindruckende klassizistische Orangerie in Oranienbaum bei Dessau – jedoch in einer bewusst modernen Umsetzung.
Die Bauweise verbindet Stahl- mit Holzbauweise. So dienen Stahlprofile als Tragwerk, während vorgefertigte Elemente in Holzrahmenbauweise den gedämmten Raumabschluss herstellen. Die Fassade besteht aus einer vertikal gegliederten Nut-Feder-Schalung. Sie verbindet sich optisch mit der baumreichen Umgebung des Parks. Mit schmalen Stahlprofilen gerahmte Fenster verstärken die industrielle Anmutung. Fassadenintegrierte Nisthilfen für gebäudebewohnende Vögel und Fledermäuse unterstreichen den ökologischen Anspruch des Parks. Aus Gründen des Hochwasserschutzes steht die Halle wie ein Tempel auf einem sanft angeböschten Plateau.
So fügt sich die neue Gartenbauhalle als moderner Zweckbau selbstverständlich in die gewachsene Parklandschaft ein – robust, funktional und zugleich mit feinem Gespür für den historischen und landschaftlichen Kontext.
Projektdaten
Architekt LPh 1–4: Unnewehr Packbauer Architekten, Leipzig
Bauherr: Keesscher Park GmbH, Leipzig
Fotos: KI-gestützt, upa, Leipzig
Planungsbeginn: 2018






